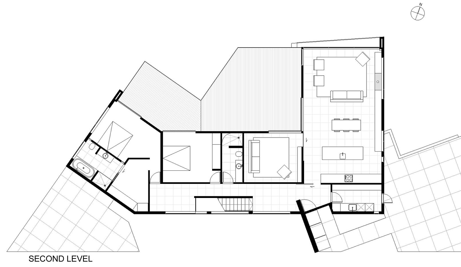
17/21 Images A Sunny and Comfortable Contemporary Home with Stunning Ocean Views in Christchurch by MAP Architects (17)