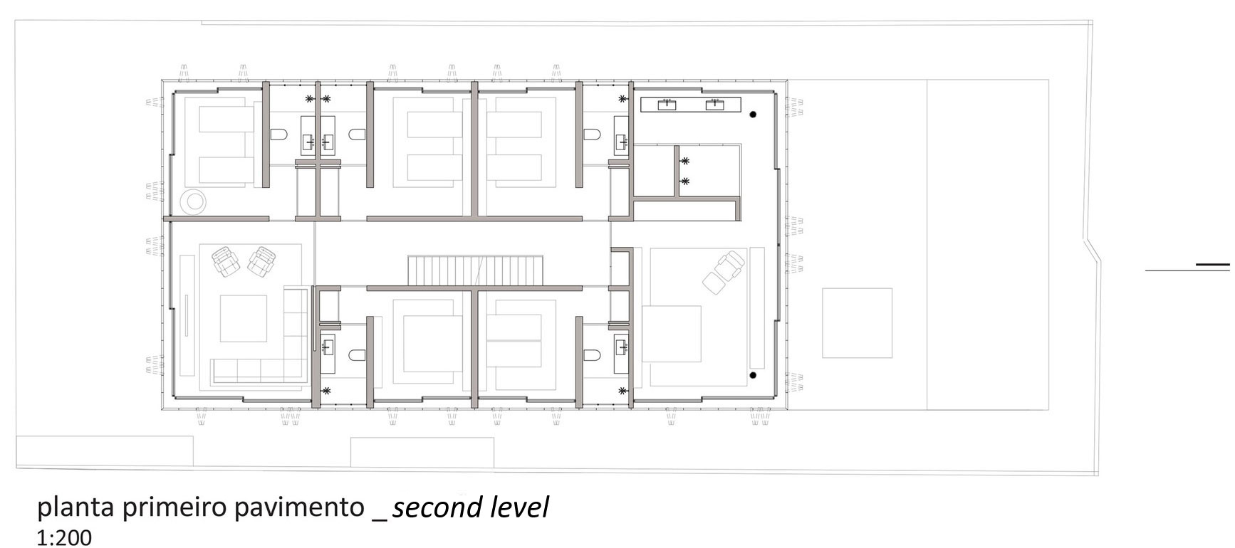
32/33 Images A Stunning Contemporary Home with Private Swimming Pool in São Sebastião by Studio MK27 & Eduardo Chalabi (33)