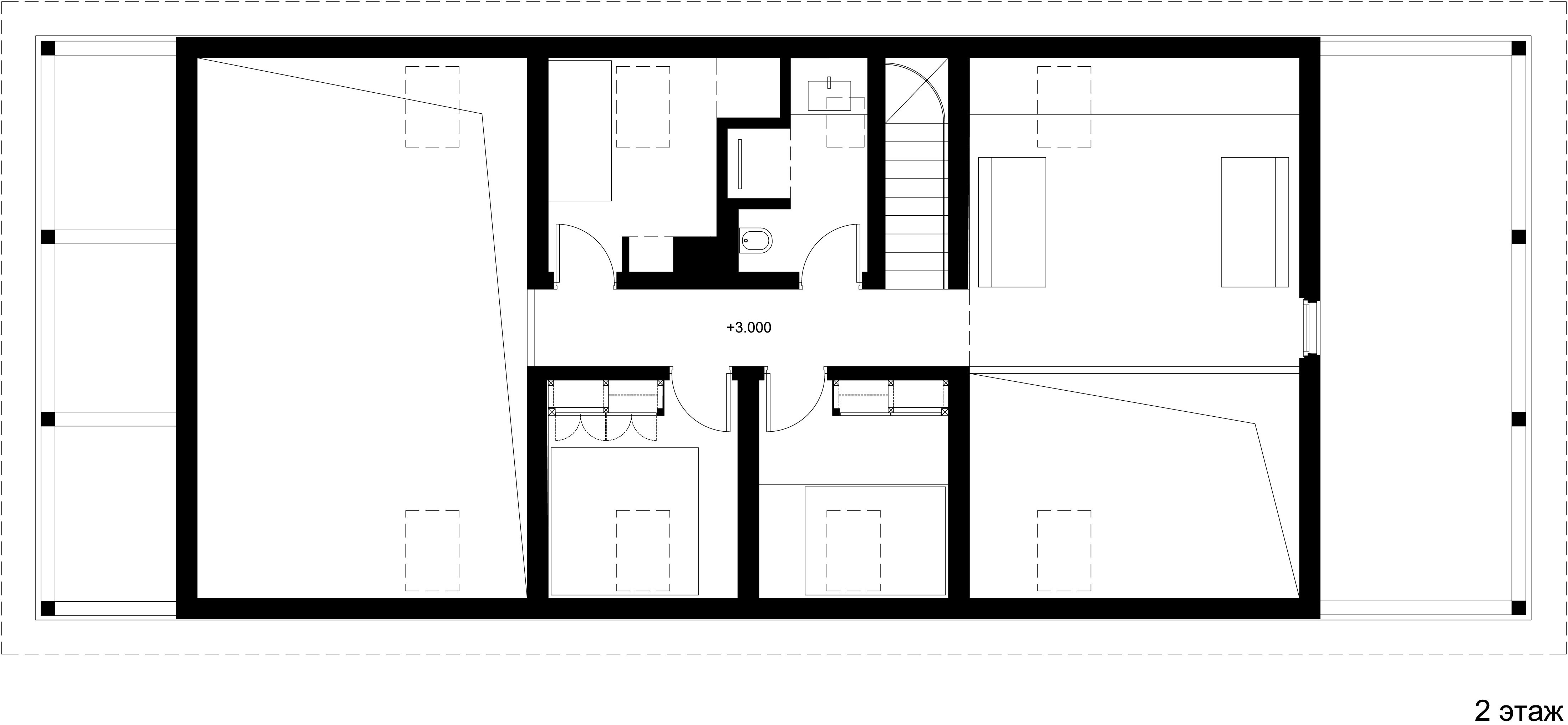
38/42 Images A Crisp, Bright and Monochrome Home for the Architect and His Family in Moscow by Alexey Ilyin (38)