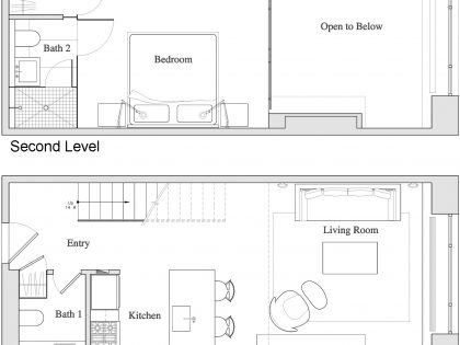
A Colorful and Modern Light-Filled Duplex with Natural Light in Manhattan - Full Image Gallery
See the "A Colorful and Modern Light-Filled Duplex with Natural Light in Manhattan" from every angle with this massive 11 image gallery.
Just click on any photo to get the access to the full-size picture. All the wallpapers belong to their respective owners and are free for personal use only.








