Archives
November 2022
October 2022
September 2022
August 2022
October 2020
September 2020
August 2020
July 2020
June 2020
May 2020
Categories
Home
Dream Homes
Interior Design
House
Apartments
Public Space
Resort Residence
Selected Work
Dream Homes
Interior Design
Modern Interior Design
Contemporary Interior Design
Futuristic Interior Design
Luxury Interior Design
Industrial Interior Design
Transitional Interior Design
Minimalist Interior Design
Scandinavian Interior Design
Mid-Century Interior Design
House
Modern House
Contemporary House
Concrete House
Cliffside House
Beach House
Waterfront House
Mid-Century House
Cantilever House
Shipping Container House
Desert House
Church Conversion
Scandinavian House
Apartments
Small Apartment
Modern Apartment
Contemporary Apartment
Duplex Apartment
Penthouse
Loft
Warehouse Conversion
Selected Work
More
Living Room
Kitchen
Dining Room
Bedroom
Bathroom
Kids Room
Study Room
Concrete Walls
Glass Walls
Brick Walls
Stone Walls
Staircase
Lighting
House Plans
Landscaping
Swimming Pool
Terrace
Submit Work
Home Design
Log in
Search for:
Home
»
Apartment
»
Xigo Studio Designs a Futuristic Modern Apartment in Beijing, China
»
hy36696v
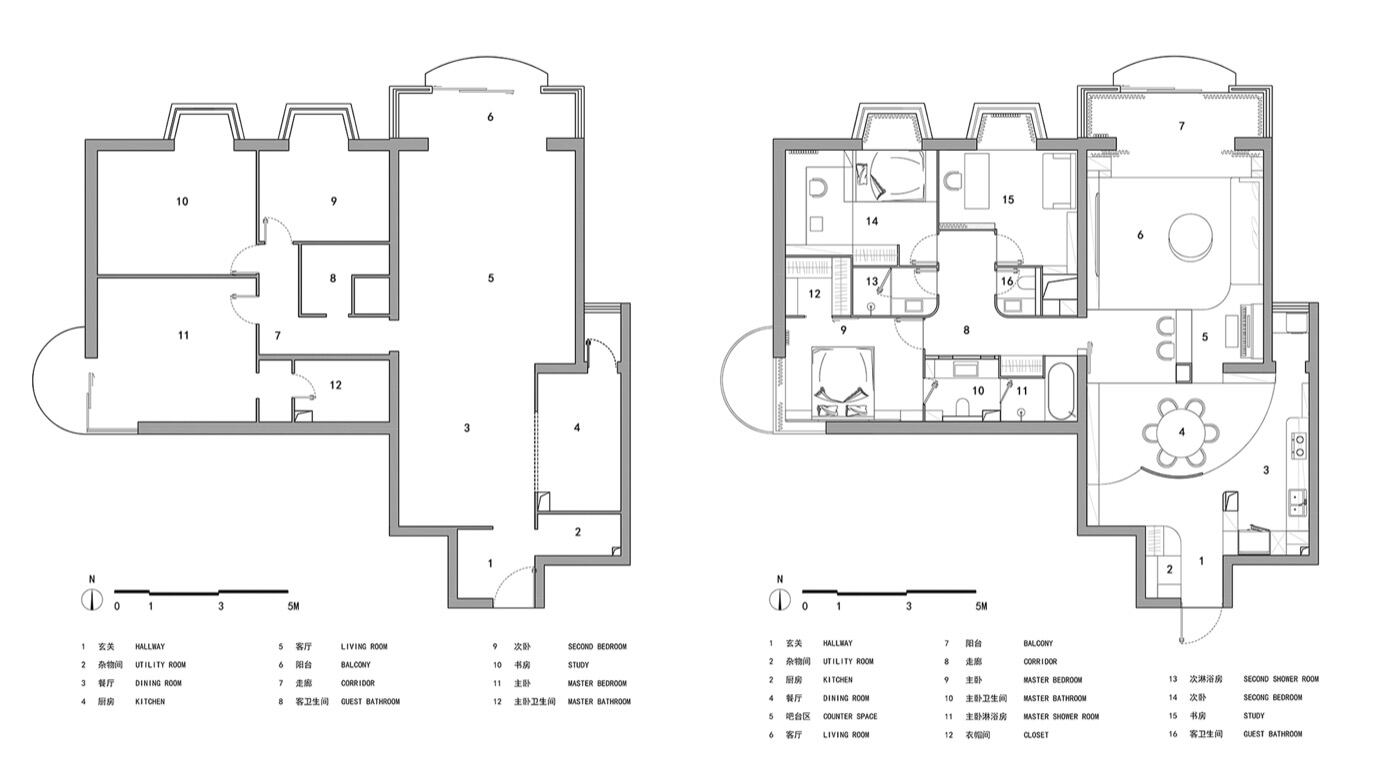
Xigo Studio Designs a Futuristic Modern Apartment in Beijing, China
Back to gallery
Previous
Next
24/25 Images
Xigo Studio Designs a Futuristic Modern Apartment in Beijing, China (24)
You Might Also Enjoy
Apartment
Lighting
A Contemporary Apartment with Shades of Red and Black Furniture in Mortsel, Belgium
Apartment
Filippo Bombace
A Contemporary Apartment with a Variety of Wood Partition Walls in Rome, Italy
Apartment
Wall Decor
A Cozy Modern Apartment with Raw Interior and Soft Decoration in Gdansk, Poland
Apartment
Lighting
A Modern and Minimalist Apartment with Clean and Elegant Interiors in Poland
Apartment
Wood Floors
A Bright Modern Apartment Made with Elegance and Spectacular Views in New York City
Apartment
São Paulo
A Unique Artsy Contemporary Apartment with Colorful and Lively Interiors in São Paulo
Apartment
Rotterdam
An Elegant Modern Home with Dark and Sophisticated Interior in Rotterdam
Apartment
Contemporary Interior Design
A Light-Filled Contemporary Apartment with Lots of Open and Semi-Open Space in Mexico City