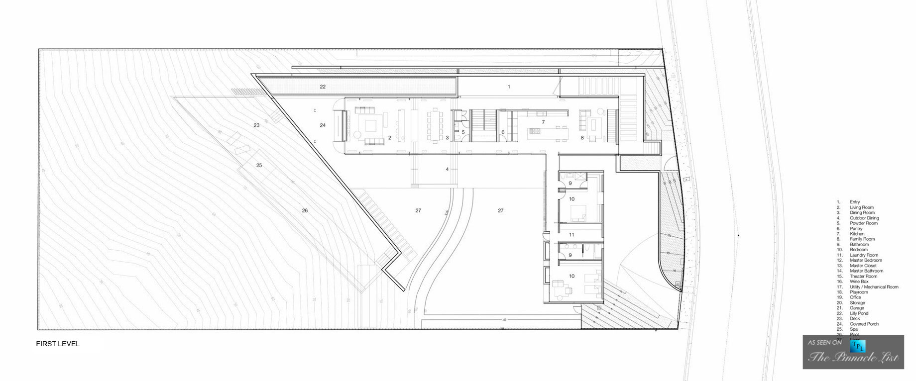
35/35 Images A Luxury Contemporary Home with Spectacular Views in Los Angeles, California by SPF Architects (35)