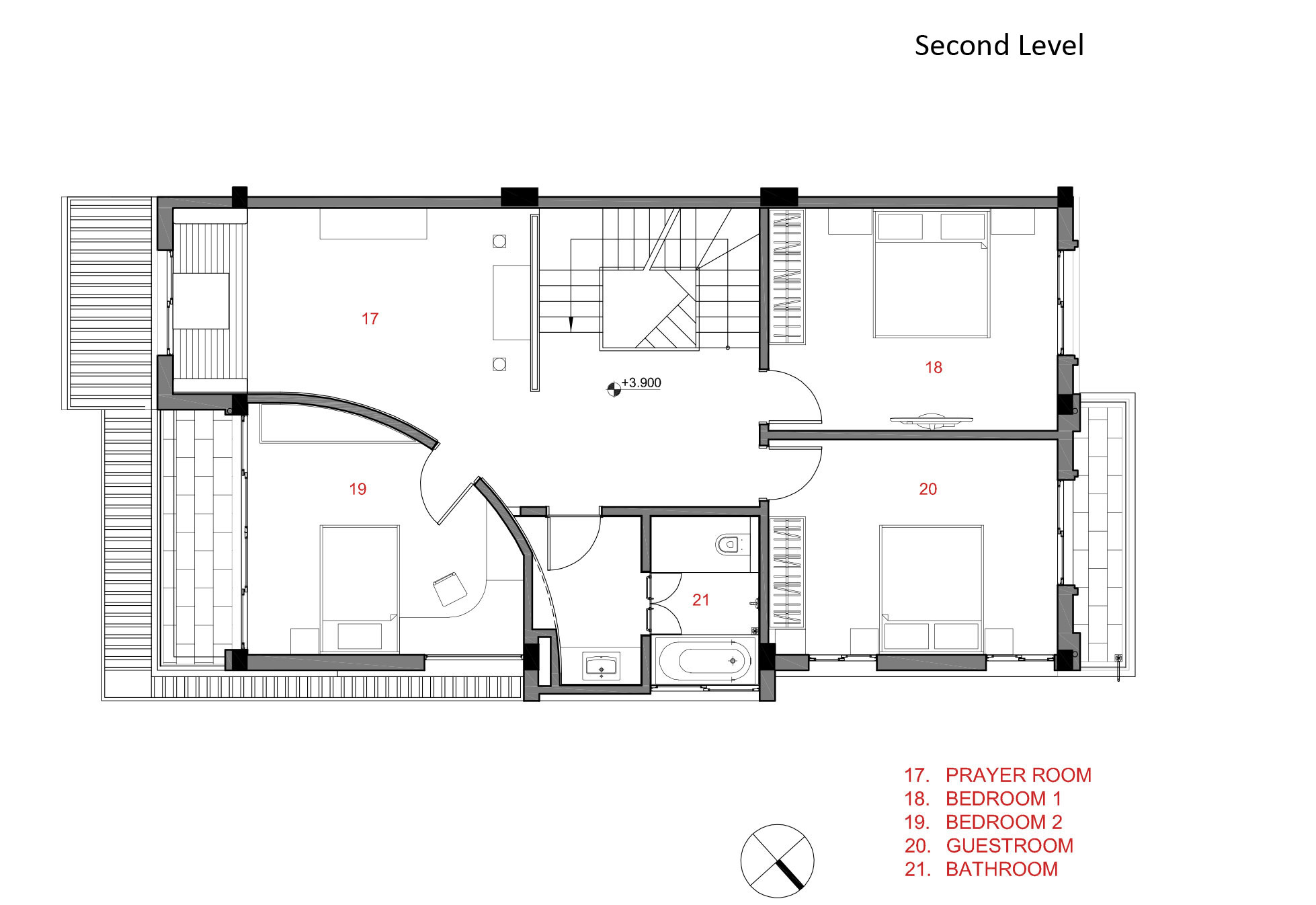
25/28 Images An Elegant Home Combines Classic Exterior and Contemporary Interior in Ha Noi, Vietnam by ABS Corporation (25)