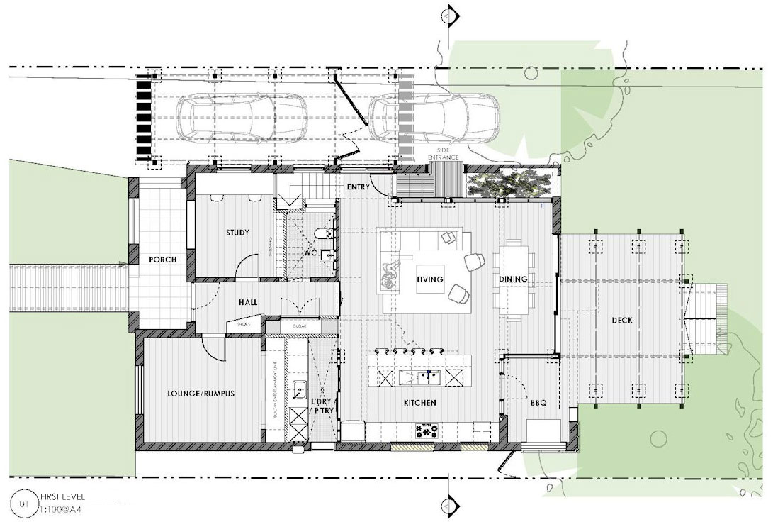
A Luminous and Dramatic Home with Spaces Full of Natural Light in Sydney

A Luminous and Dramatic Home with Spaces Full of Natural Light in Sydney by CplusC Architectural Workshop (19)
19/21 Images