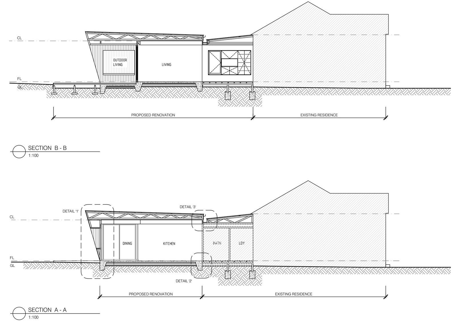
15/15 Images A Bright Timber-Clad Home with Vibrant and Luminous Interiors in Thornbury by Mesh Design (15)