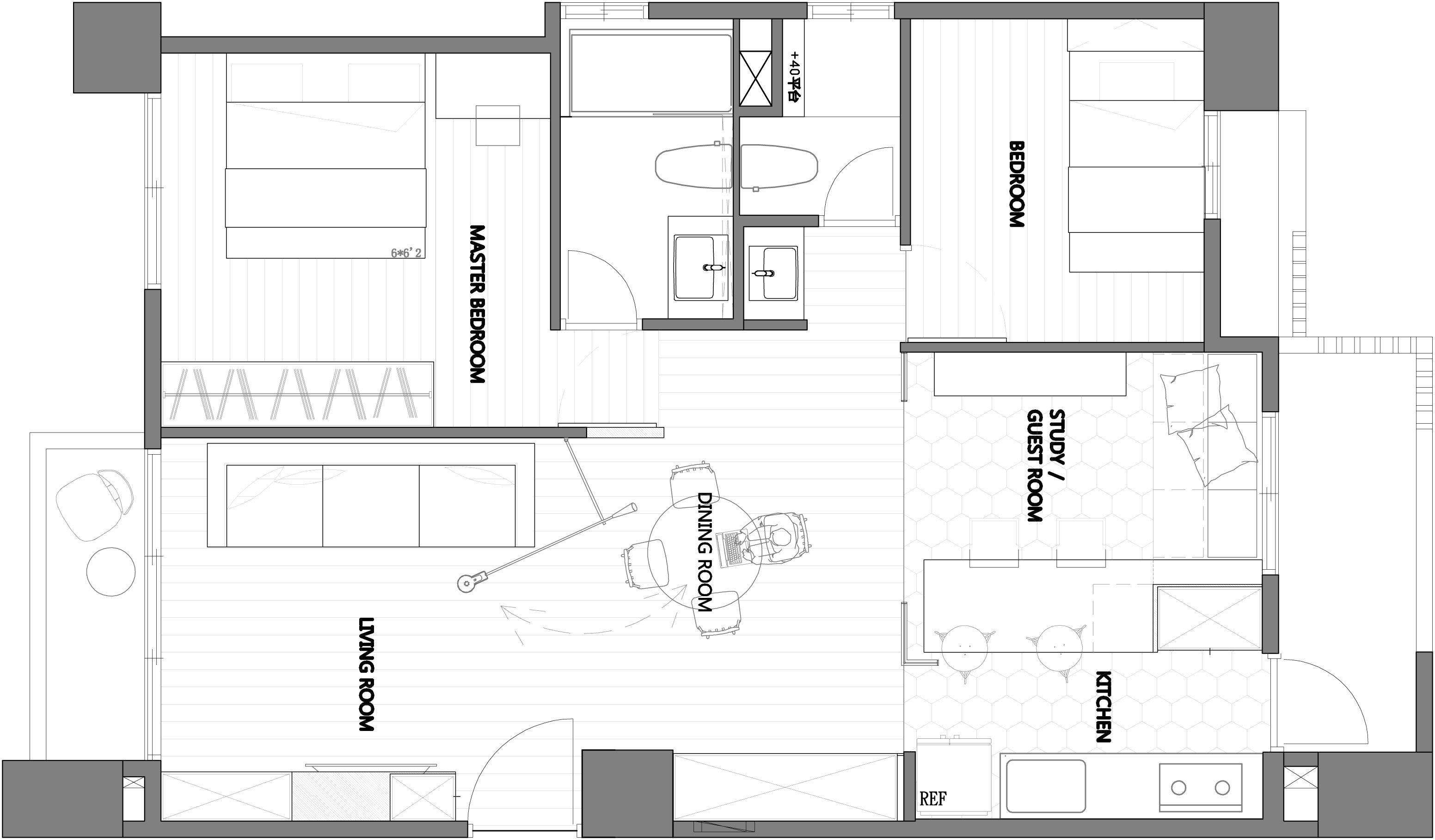
21/21 Images An Elegant Contemporary Home with a Simple and Fresh Interior in Taichung, Taiwan by Z-AXIS DESIGN (21)