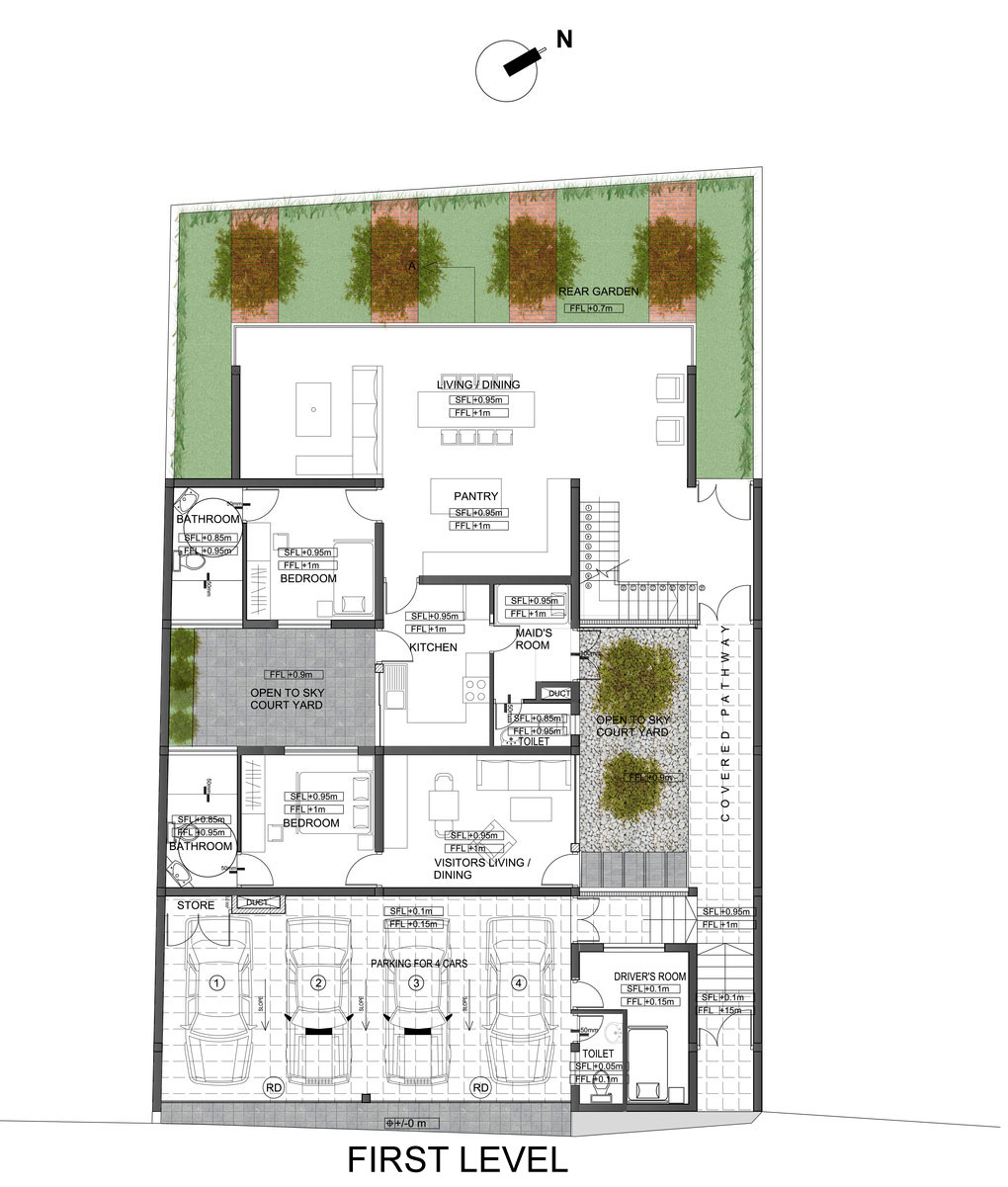
15/19 Images A Contemporary Home with Private Spaces and Natural Light in Colombo, Sri Lanka by KWA Architects (15)