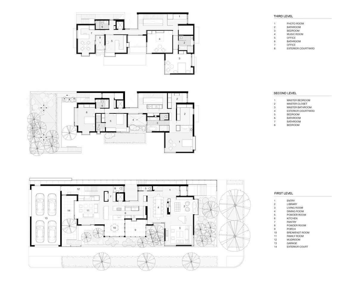
23/24 Images An Elegant Modern Home Integrated within a Scenic Landscape in Chicago by Dirk Denison Architects (23)