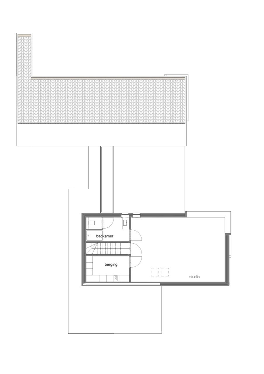
24/31 Images A Luminous House Divided in Two Separate Volumes Surrounded by Vast Green on Aalter, Belgium by Architektuurburo Dirk Hulpia (54)