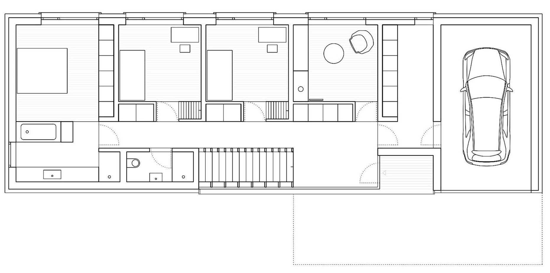
15/18 Images A Spectacular Wooden House Surrounded by a Picturesque Forest in Egg, Austria by Innauer-Matt Architekten (15)