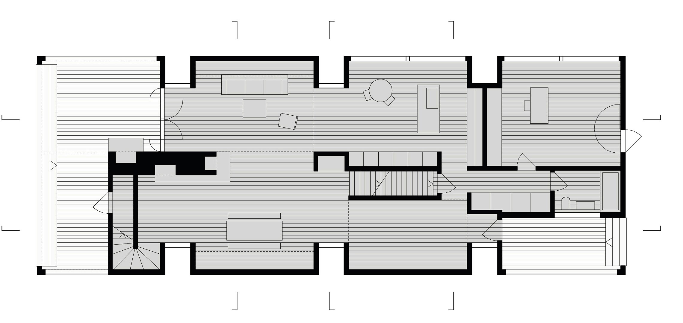
25/34 Images A Contemporary House Constructed of Wood and Metal-Clad for Two Art Collectors in Ancram by HHF Architects & Ai Weiwei (25)