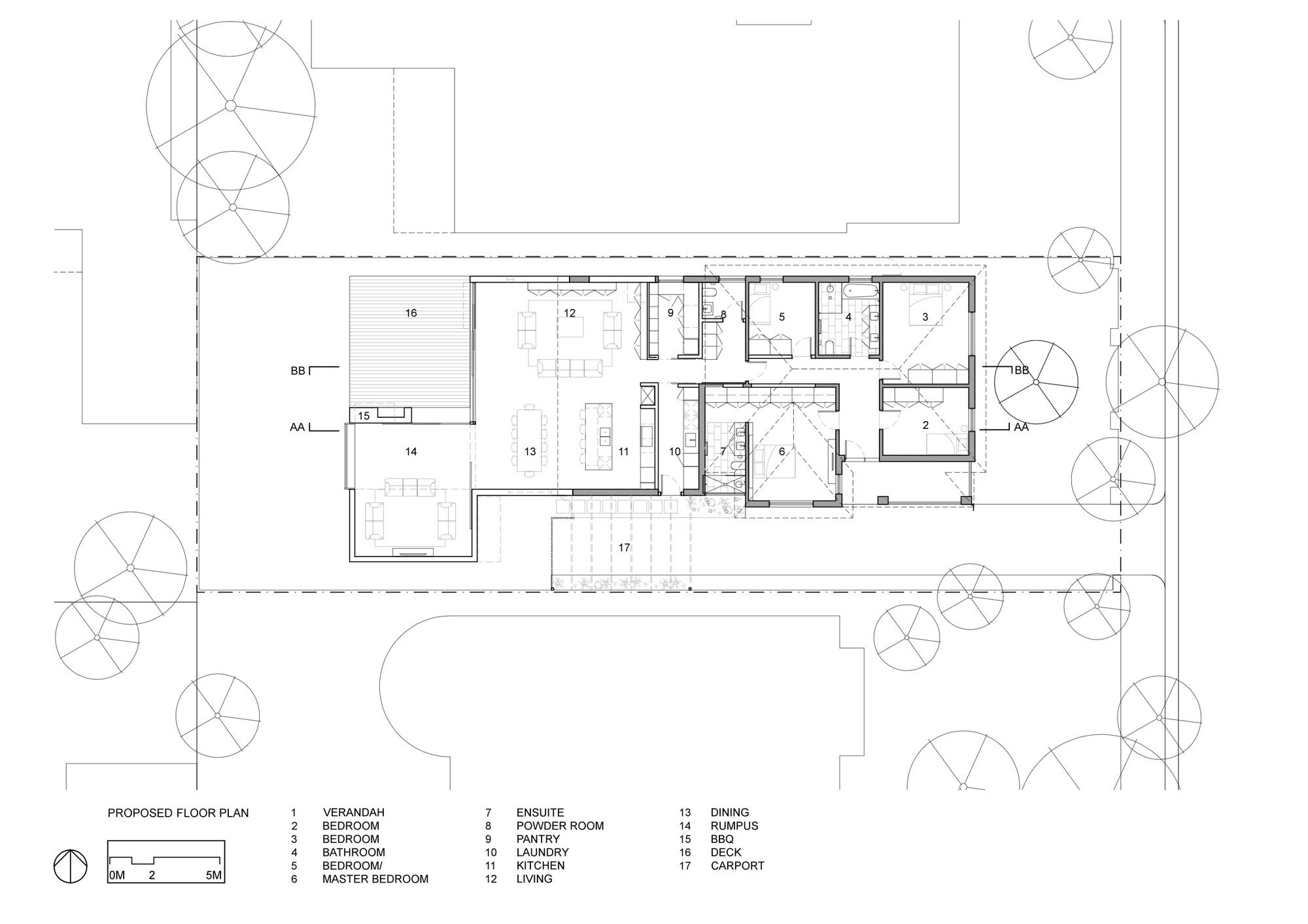
12/23 Images A Cozy Contemporary Home with Simple Elegant Interiors in Elsternwick, Australia by Freedman White (12)