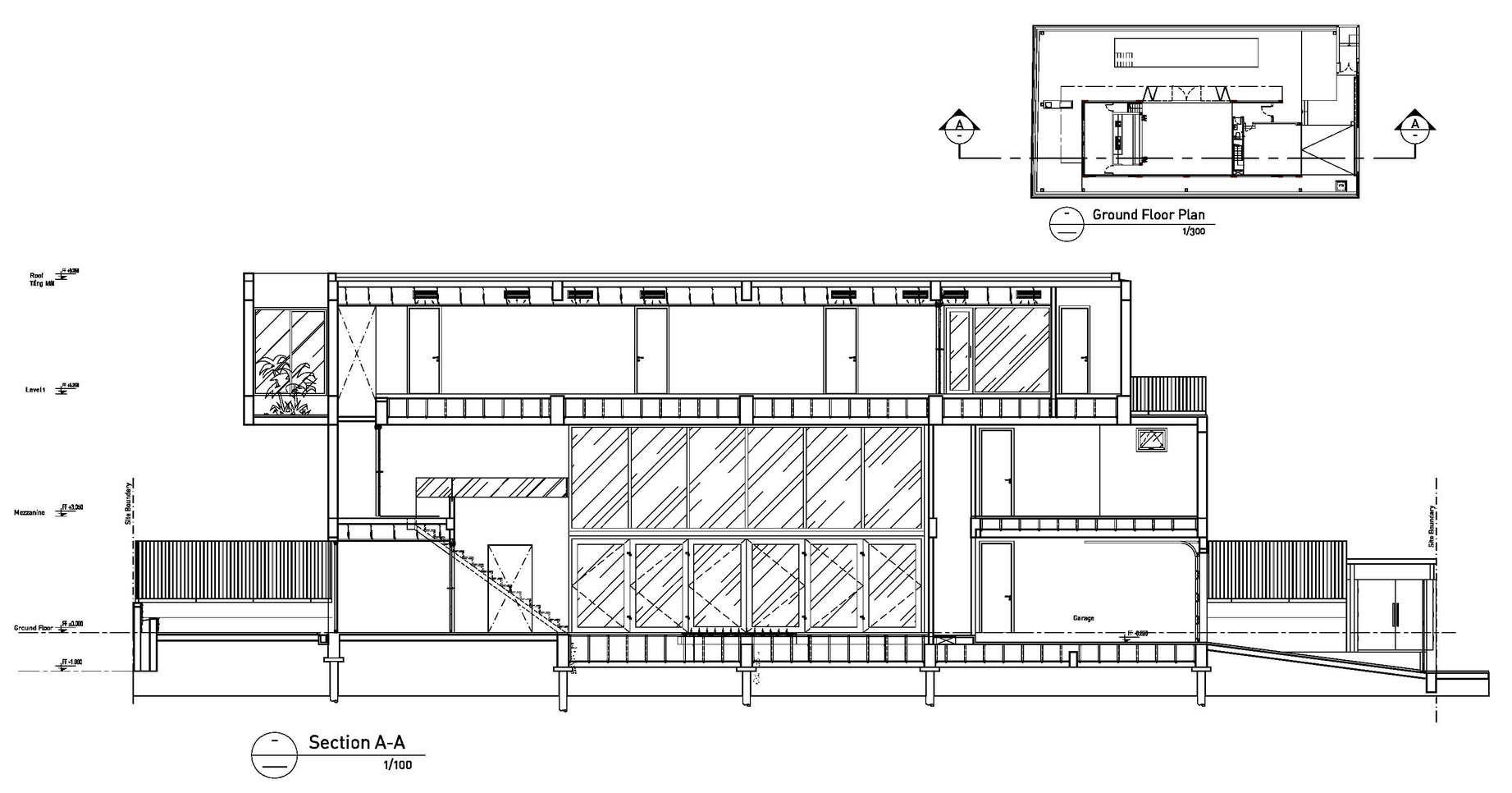
26/28 Images A Stylish Contemporary Home Composed of Two Interlocking Volumes in Ho Chi Minh City by MimA NYstudio + Real Architecture (26)