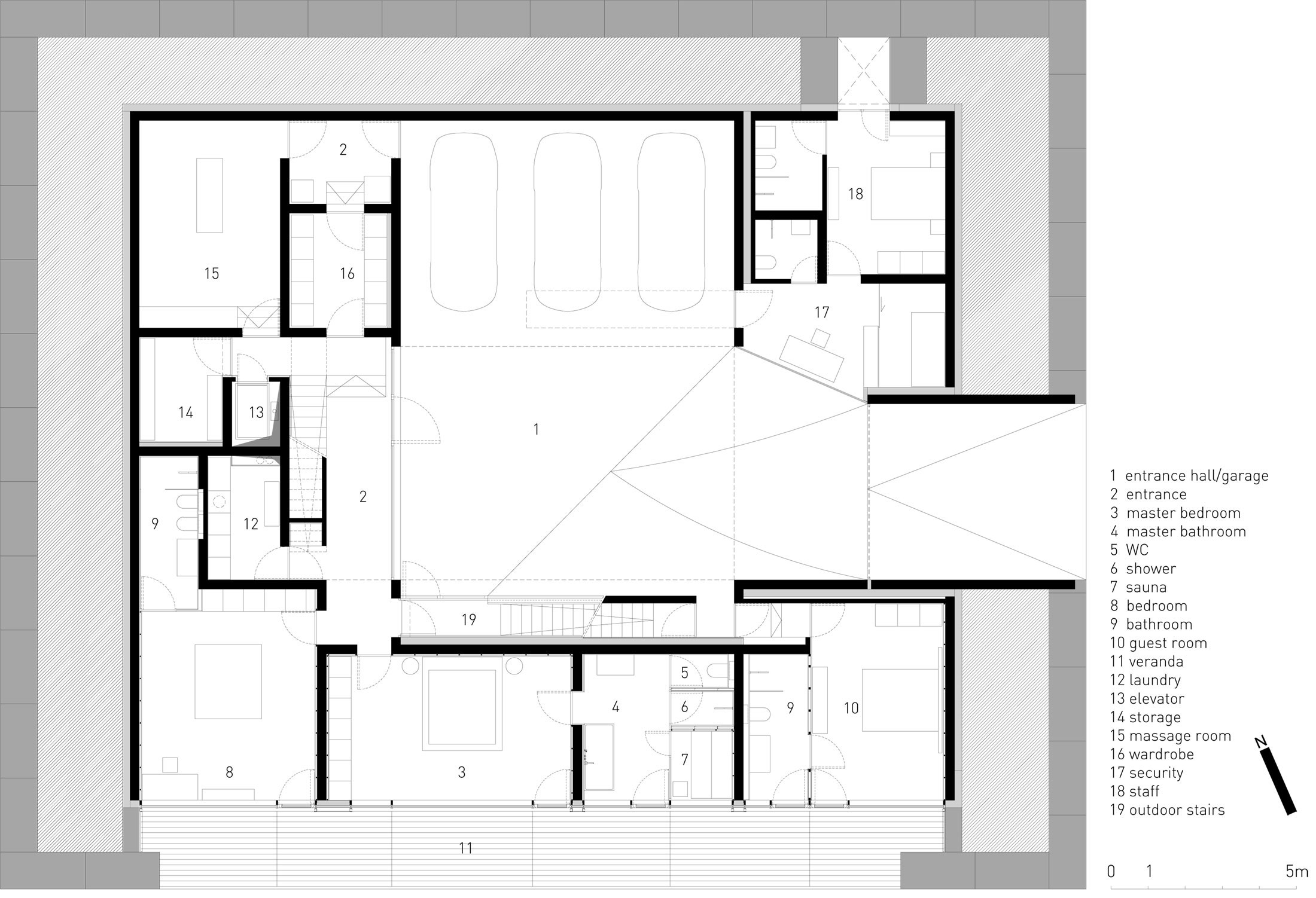
27/30 Images A Stunning Home with Gabion Walls and a Grassy Viewing Deck in Sofia, Bulgaria by I/O Architects (27)