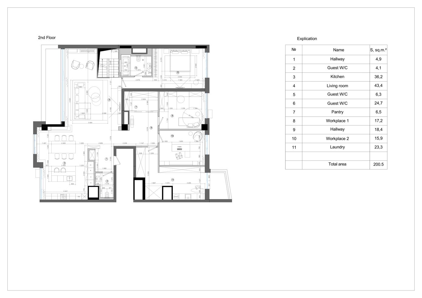
43/43 Images A Spacious Apartment with Natural Materials and Soft Accents in Warsaw, Poland by 33bY Architecture (43)