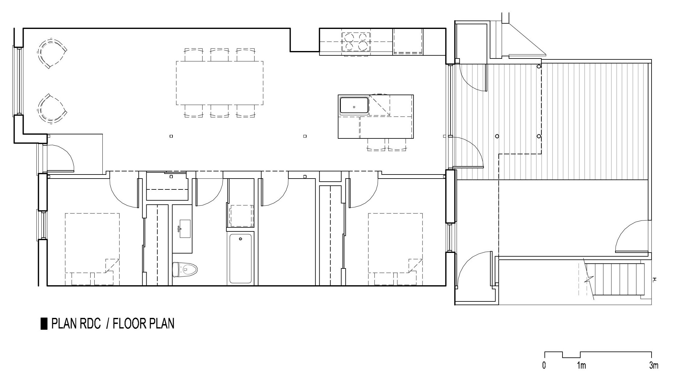
12/12 Images A Bright and Airy Apartment for Young Family in Montcalm by Bourgeois/Lechasseur architects (12)