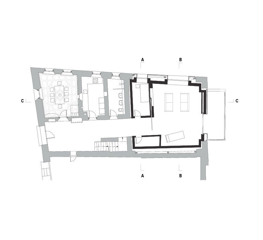
32/41 Images A Traditional Farmhouse Converted Into a Timeless Contemporary House in Scuol, Switzerland by Philipp Baumhauer Architects (32)