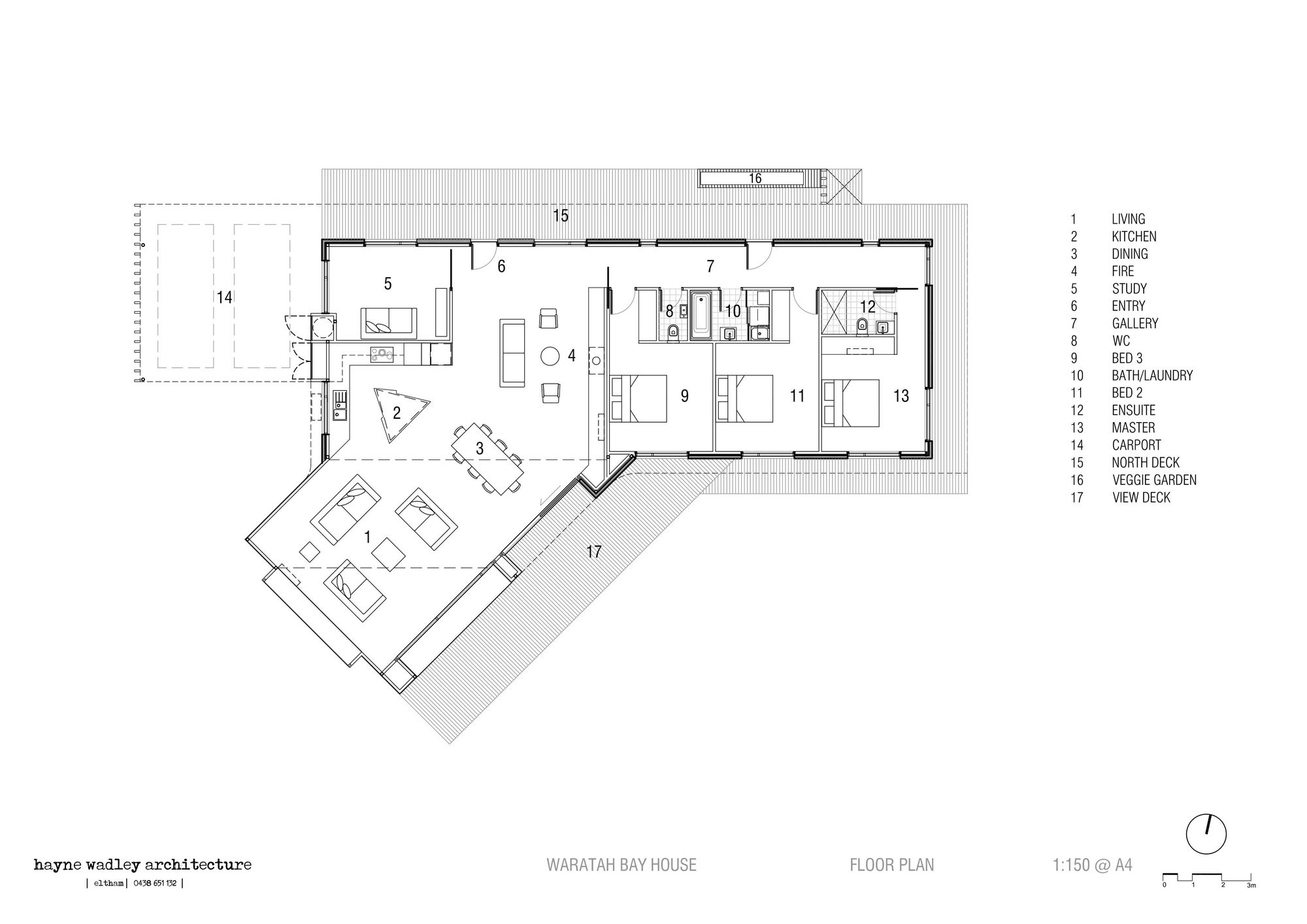
13/21 Images A Colorful Modern Home with Simple and Beautiful Lines in Waratah Bay by Hayne Wadley Architecture (13)