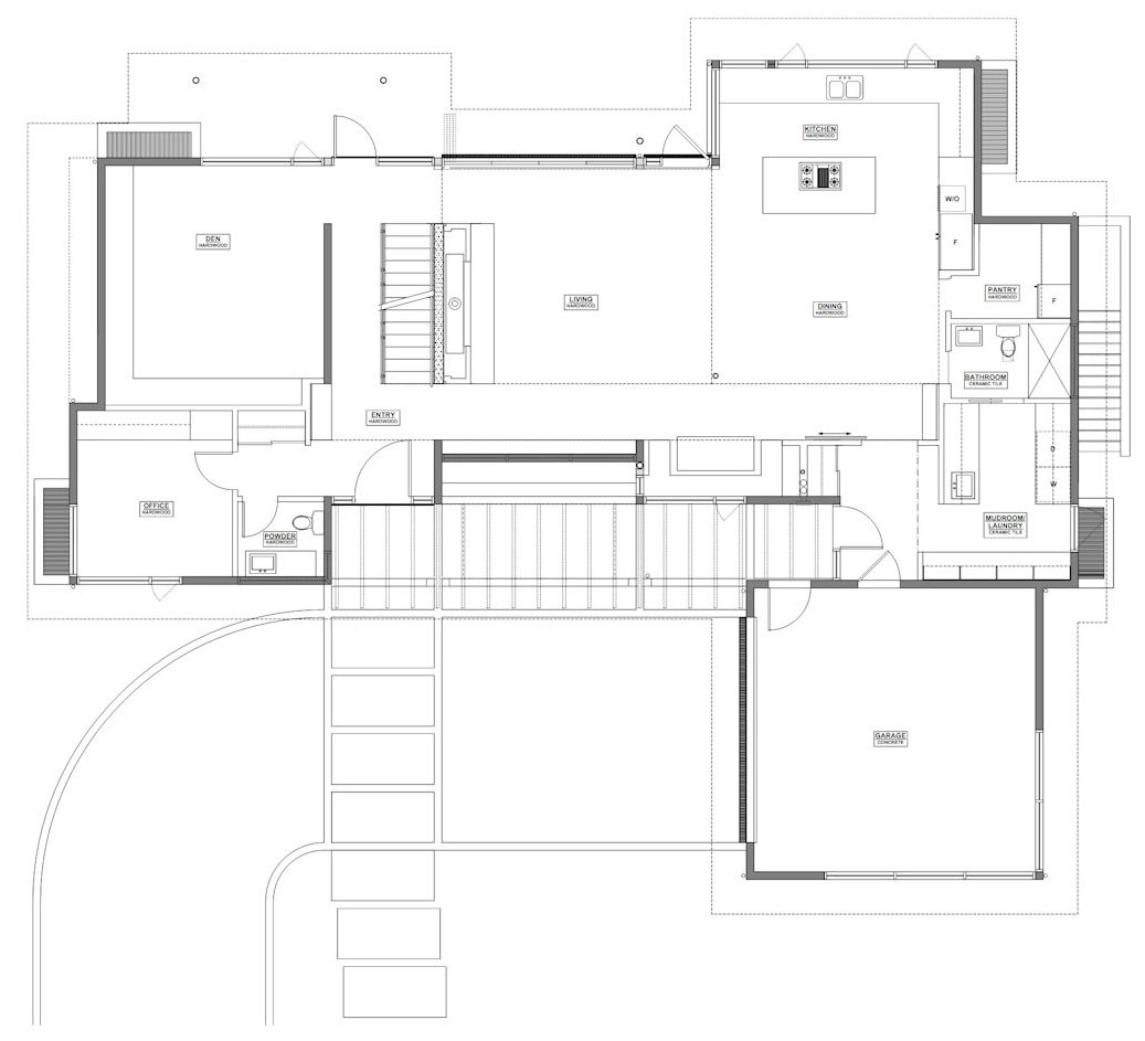
17/19 Images A Bright and Spacious Home Surrounded by Forest and Natural Elements in Vancouver, Canada by Kevin Vallely Design (17)