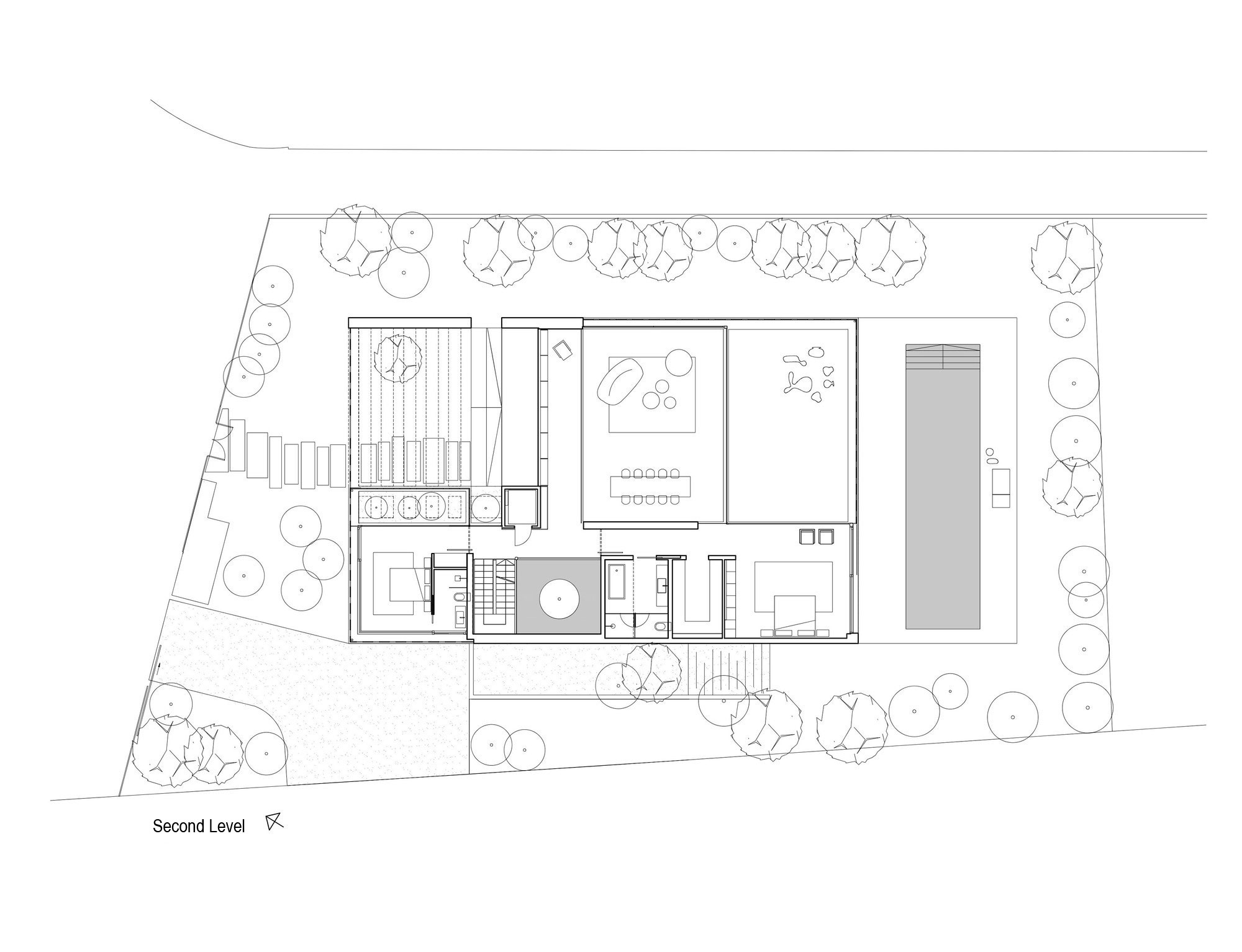
37/42 Images A Stunning Contemporary House Plays with Shadows in Tel Aviv, Israel by Pitsou Kedem Architects (37)