Madrona House by CCS ARCHITECTURE
This house was designed as a second home for a Bay Area couple as a summer retreat to spend the warm summer months away from the fog in San Francisco.
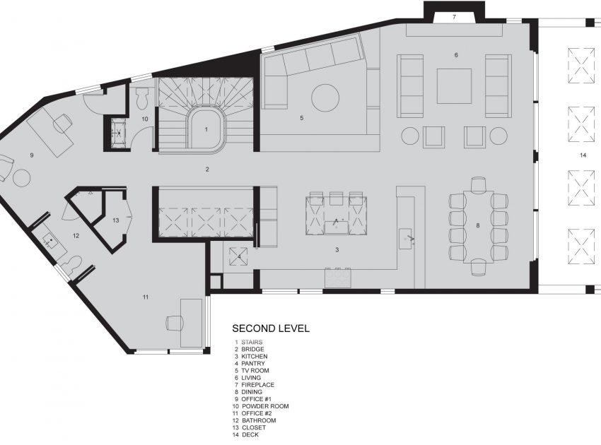
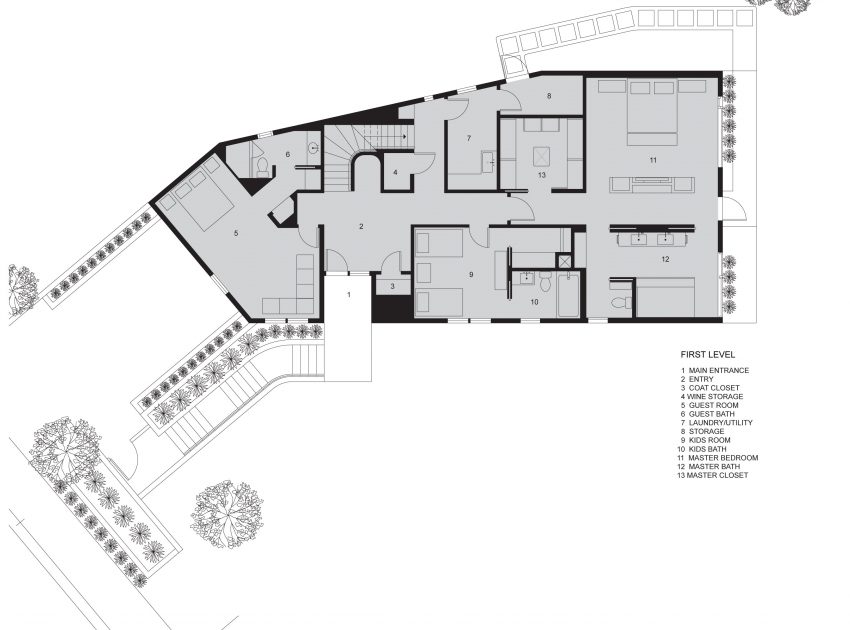
Built on a steep slope and a narrow lot, this 4000 square foot home is spread over 3 floors, with the master, guest and kids bedroom on the ground floor, and living spaces on the upper floor to take advantage of the views. The main living level includes a large kitchen, dining, and living space, connected to two home offices by way of a bridge that extends across the double height entry.
This bridge area acts as a gallery of light, allowing filtered light through the skylights above and down to the entry on the ground level. All living space takes advantage of grand views of Lake Washington and the city skyline beyond.
Two large sliding glass doors open up completely, allowing the living and dining space to extend to the deck outside. On the first floor, in addition to the guest room, a “kids room” welcomes visiting nieces and nephews with bunk beds and their own bathroom. The basement level contains storage, mechanical and a 2 car garage.
Photos by: CCS ARCHITECTURE & Aaron Leitz
View more: A Former Museum Transformed Into a Luxury Contemporary Home in Rotterdam
Related: A Contemporary House with an Ambiance of Luxury and Comfort in California
Here: A Contemporary House Constructed of Wood and Metal-Clad for Two Art Collectors in Ancram
Read also: An Elegant Modern Vacation Home in the Catskill Mountains, New York
Next: A Cozy and Comfortable Vertical Home for a Family of Four in Ho Chi Minh, Vietnam
Check out: A Cozy and Stylish Contemporary Home in Shomrat, Israel
Read more: A Stunning Concrete Home Surrounded by Fields and Vegetation in Fonte Boa
See also: A Bright Timber-Clad Home with Vibrant and Luminous Interiors in Thornbury












