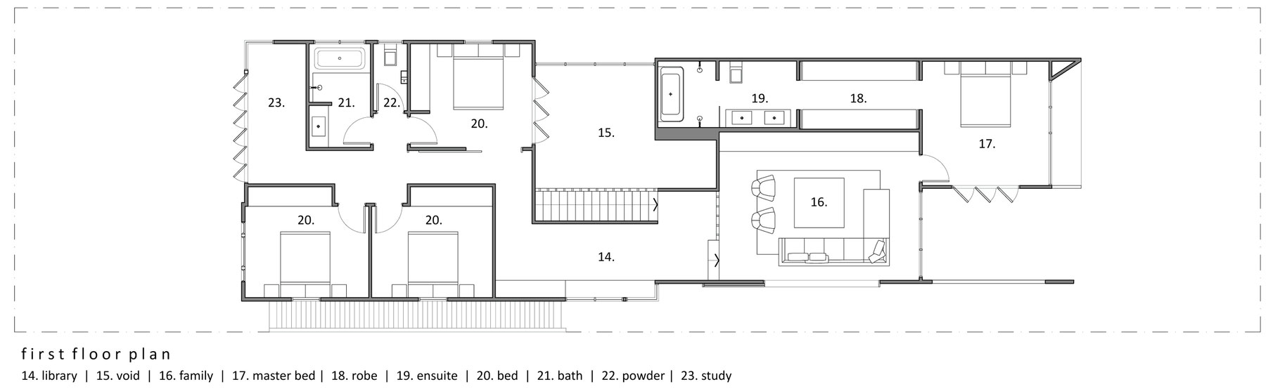
28/30 Images A Gorgeous Modern Home with Warm and Dynamic Interiors in Paddington, Australia by Shaun Lockyer Architects (28)