Carroll Gardens Townhouse by Lang Architecture
This 4 story Italianate row house was was converted from a three family to a single-family house with original interior details carefully restored.
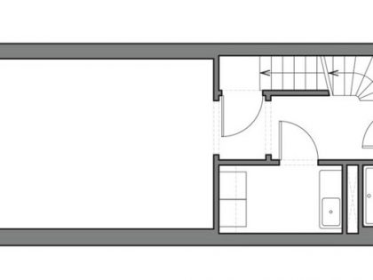
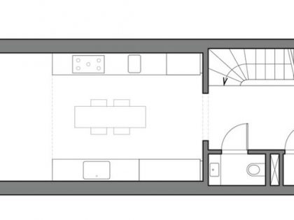
The garden floor features an office and den, the parlor floor has a living room with custom window seat at the front and a kitchen and new steel balcony at the rear. The kitchen has custom painted cabinets and long narrow table. New steel windows with narrow subdivisions at the rear of the house complement the slender aesthetic of the balcony balustrade and cabinets.
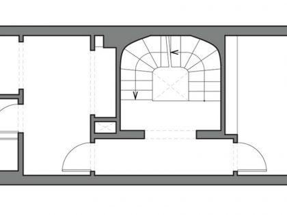
The fine wood period stair has been restored and leads to the bedroom floors. The master bedroom overlooks the street, with a generous dressing room and bathroom suite at the rear. The bathroom features custom steel and wood partitions, providing a warm complement to marble slab and tile. The top floor features two children bedrooms flanking the stair hall and bathroom. The bathroom is finished with white ceramic subway tiles and cast-iron fixtures.
Photos by: Lang Architecture & Ty Cole Photography
View more: A Contemporary Home with Sliding Glass Doors and Green Stone Pool in Israel
Related: A Contemporary Mountain Home Enclosed by White Ceramic Tiles and Dark Wooden Shingles in Divčibare
Here: A Stylish Modern Home for a Car Collector in Austin, Texas
Read also: A Cozy Contemporary House for a Young Family with Two Children in Fitzroy North
Next: A Stunning Contemporary Triangle House with Gabled Walls in Nakhon Pathom, Thailand
Check out: A Stunning Country Contemporary Home with Elegant Interior Atmosphere in São Sebastião
Read more: A Stunning and Futuristic House Made From Steel and Glass Elements in Oomiya












