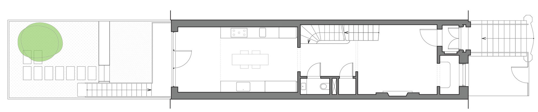
19/23 Images A Three-Family Row House Converted Into an Elegant Contemporary Home in Carroll Gardens, New York City by Lang Architecture (19)