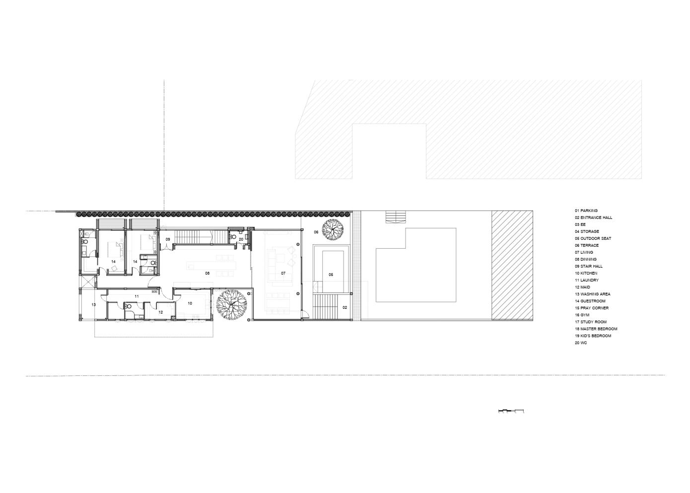
18/19 Images A Modern Concrete Home Offers a Playful Taste in Hat Yai, Thailand by Vive Design Studio (18)