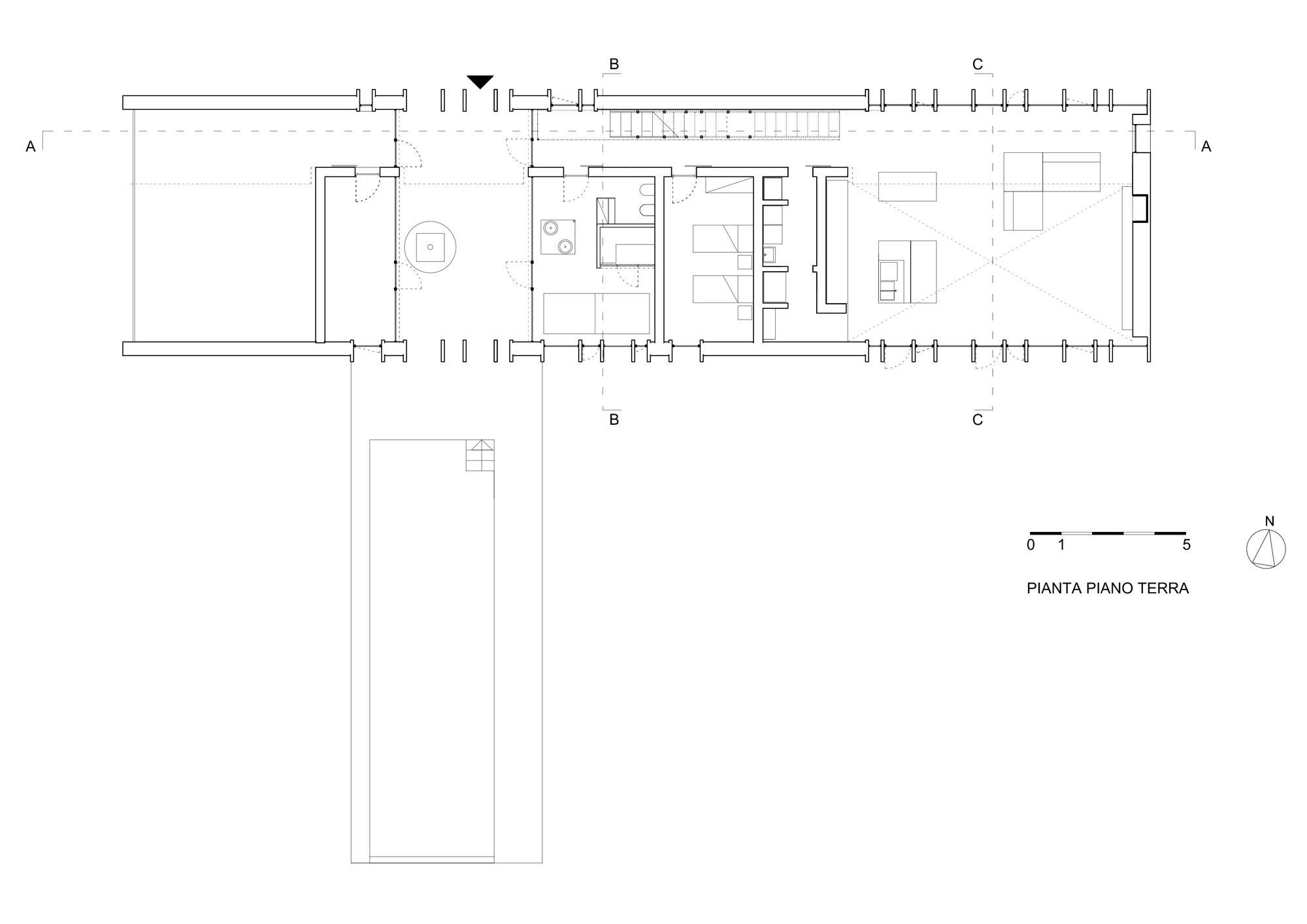
A Bright Long and Narrow Home with Contemporary and Permeable Facade in Polverigi, Italy

A Bright Long and Narrow Home with Contemporary and Permeable Facade in Polverigi, Italy by simone subissati architects (15)
15/24 Images