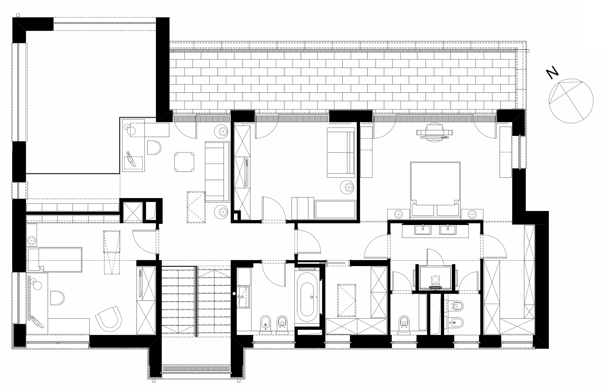
52/53 Images A Stunning Contemporary Home with Asymmetrical Facade and Unique Look in Budapest, Hungary by Sandor Duzs and Architema (52)