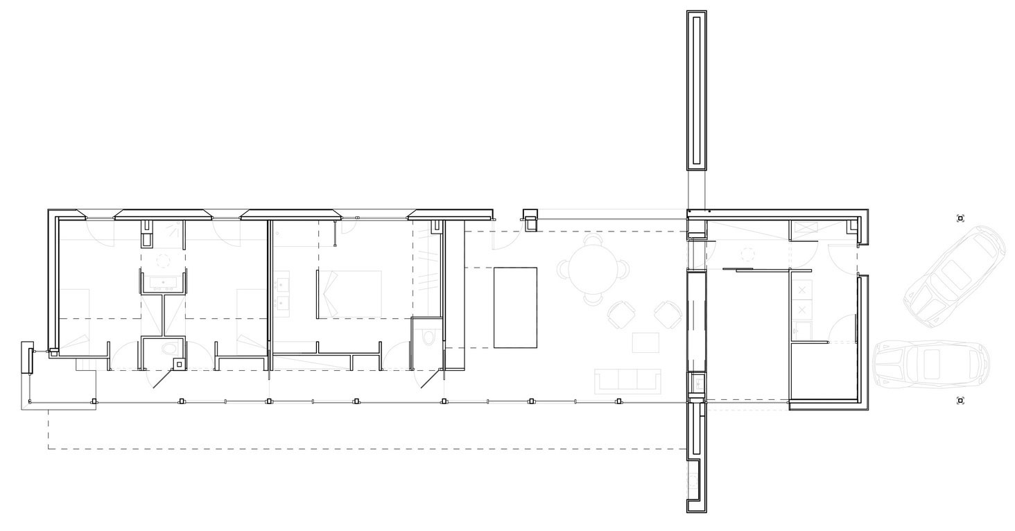
A Striking Contemporary Home with Glass Facades in Montmorency, France

A Striking Contemporary Home with Glass Facades in Montmorency, France by A+B architectes dplg (21)
21/28 Images