A Beautiful Contemporary House with Transparent Rear Facade in Northcote

A Beautiful Contemporary House with Transparent Rear Facade in Northcote by BKK Architects (14)
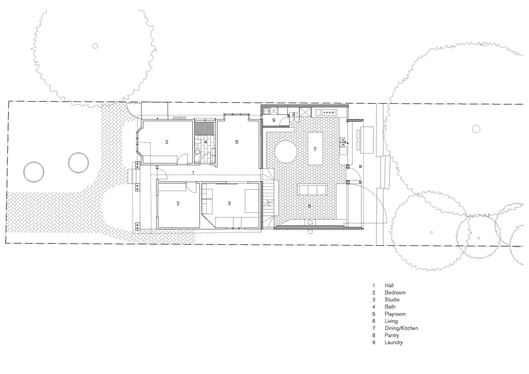
14/19 Images

A Beautiful Contemporary House with Transparent Rear Facade in Northcote by BKK Architects (14)