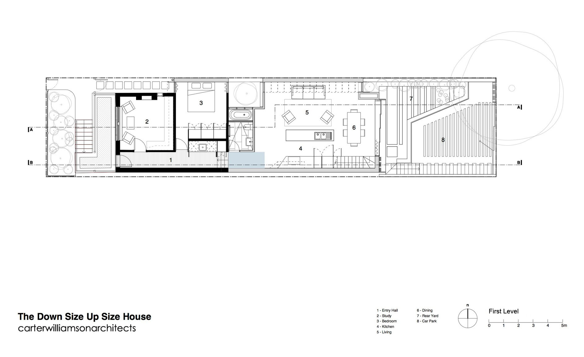
14/17 Images A Stylish Contemporary Home with Dramatic and Playful Features in North Shore, Australia by Carterwilliamson Architects (14)