A Stunning Concrete Home Features a Rooftop Pool with Ocean Views in Pinamar, Argentina

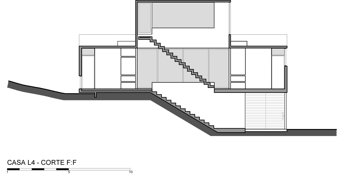
A Stunning Concrete Home Features a Rooftop Pool with Ocean Views in Pinamar, Argentina by Luciano Kruk Arquitectos (54)
54/56 Images

A Stunning Concrete Home Features a Rooftop Pool with Ocean Views in Pinamar, Argentina by Luciano Kruk Arquitectos (54)