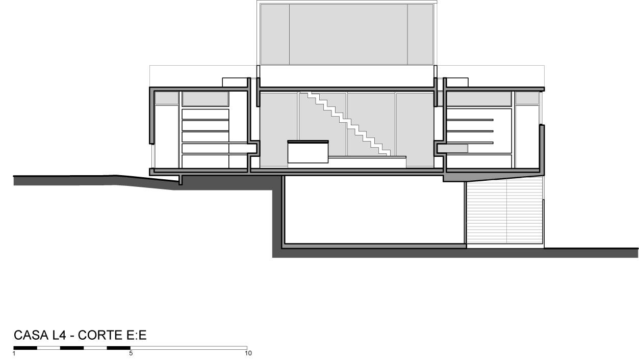
A Stunning Concrete Home Features a Rooftop Pool with Ocean Views in Pinamar, Argentina

A Stunning Concrete Home Features a Rooftop Pool with Ocean Views in Pinamar, Argentina by Luciano Kruk Arquitectos (53)
53/56 Images