Archives
November 2022
October 2022
September 2022
August 2022
October 2020
September 2020
August 2020
July 2020
June 2020
May 2020
Categories
Home
Dream Homes
Interior Design
House
Apartments
Public Space
Resort Residence
Selected Work
Dream Homes
Interior Design
Modern Interior Design
Contemporary Interior Design
Futuristic Interior Design
Luxury Interior Design
Industrial Interior Design
Transitional Interior Design
Minimalist Interior Design
Scandinavian Interior Design
Mid-Century Interior Design
House
Modern House
Contemporary House
Concrete House
Cliffside House
Beach House
Waterfront House
Mid-Century House
Cantilever House
Shipping Container House
Desert House
Church Conversion
Scandinavian House
Apartments
Small Apartment
Modern Apartment
Contemporary Apartment
Duplex Apartment
Penthouse
Loft
Warehouse Conversion
Selected Work
More
Living Room
Kitchen
Dining Room
Bedroom
Bathroom
Kids Room
Study Room
Concrete Walls
Glass Walls
Brick Walls
Stone Walls
Staircase
Lighting
House Plans
Landscaping
Swimming Pool
Terrace
Submit Work
Home Design
Log in
Search for:
Home
»
House
»
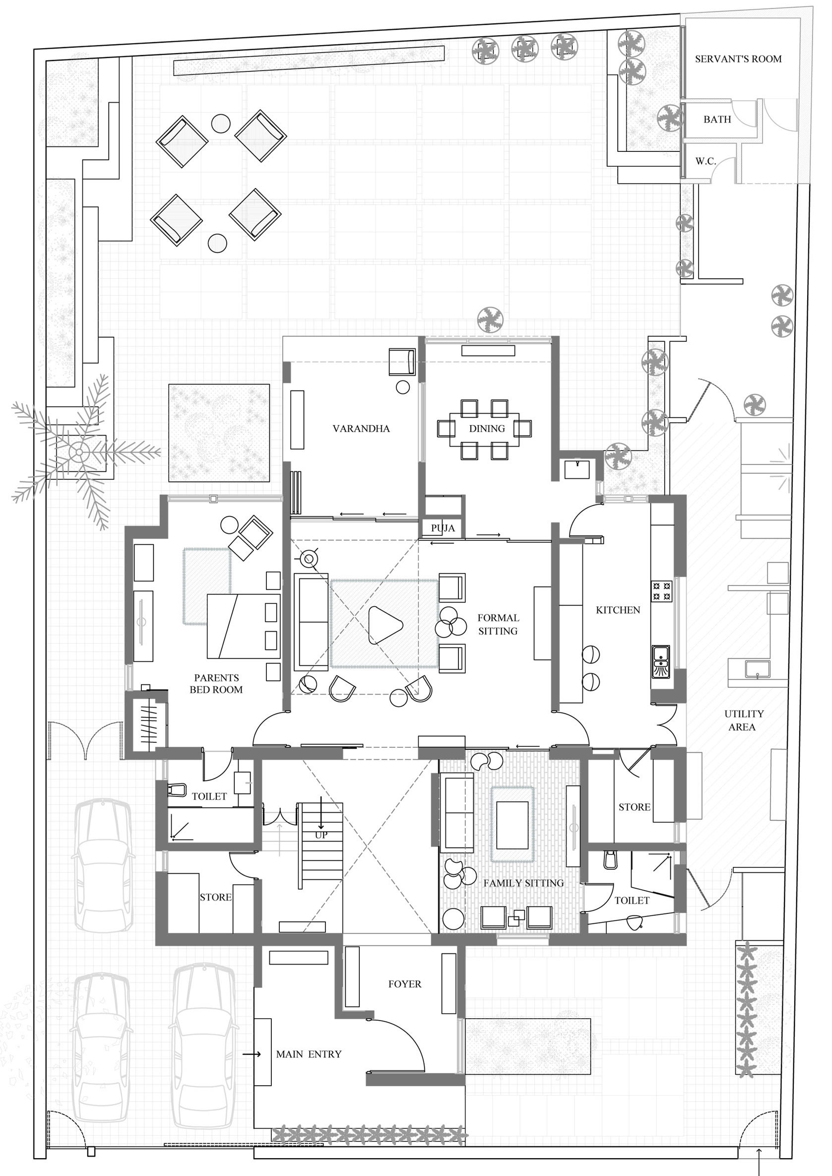
A Spacious and Elegant House with Cozy Color Schemes in Urban Chaos
»
hs29224t
A Spacious and Elegant House with Cozy Color Schemes in Urban Chaos
Back to gallery
Previous
Next
20/21 Images
A Spacious and Elegant House with Cozy Color Schemes in Urban Chaos by SAK Designs (20)
You Might Also Enjoy
House
Wood Walls
An Eco-Friendly Contemporary Home with an Abundance of Natural Light in Tijuana, Mexico
House
Keith Baker Design
An Elegant Contemporary Home with Beautiful Terrace and Garden on Vancouver Island
House
Klopf Architecture
An Elegant Mid-Century Modern House for a Family of Five in Lafayette, California
Dream Homes
Dining Room
A Spectacular and Light-Filled Modern House in Los Angeles
House
Italy
A Luminous Contemporary Home Nestled in the Breathtaking Mountains of Valtellina
House
Kitchen
Olson Kundig Designs a Cozy Modern Vacation House Overlooks the Pine Forests of Northern Montana
House
BAK Arquitectos
A Stylish Concrete House with a Courtyard and Pool in Buenos Aires
House
Decorative Accessory
An Elegant Contemporary Home Flooded with Natural Light in London