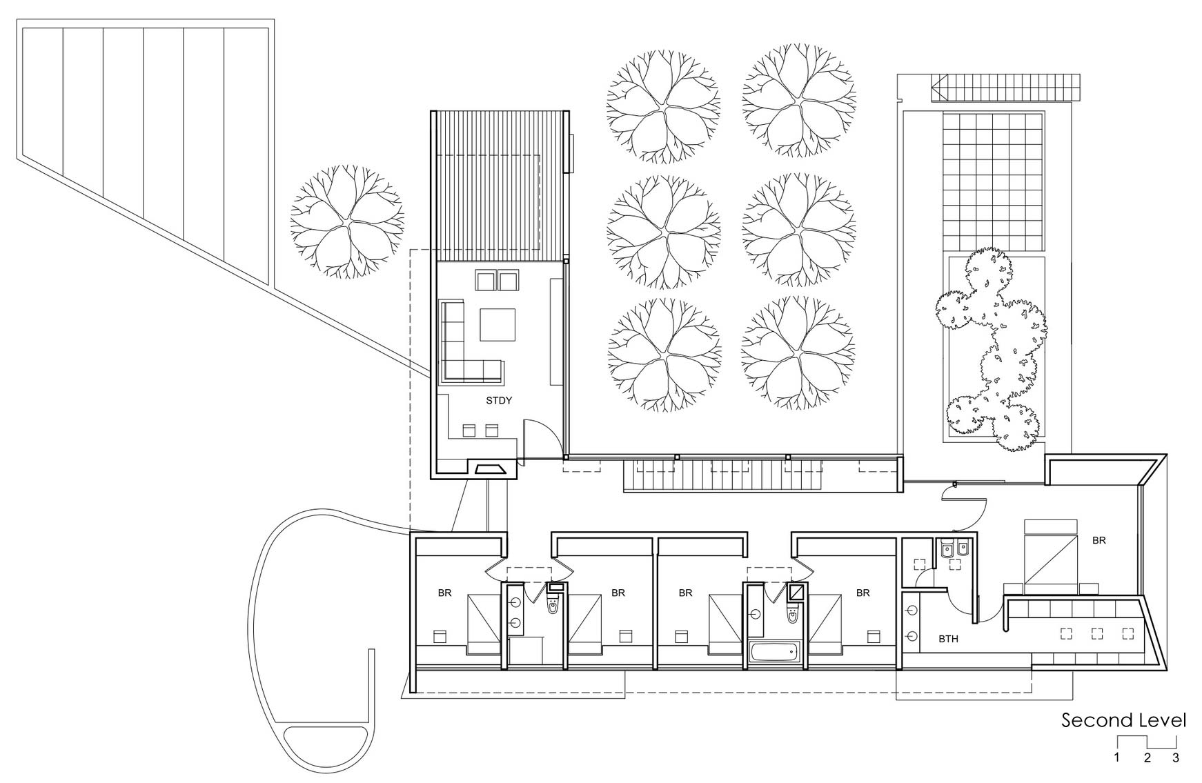
13/15 Images A Fascinating and Spacious Modern Concrete House with Luxurious Interiors in Chicureo, Chile by Raimundo Anguita (13)