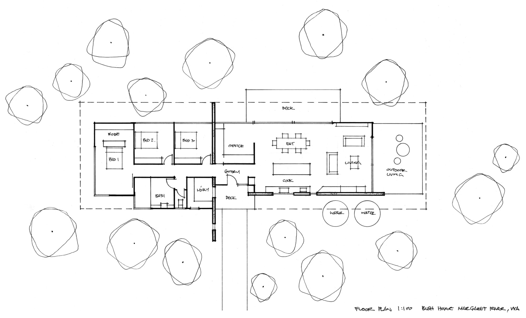
20/25 Images A Light-Filled Contemporary Home with Corrugated Steel Walls in Margaret River by Archterra Architects (22)