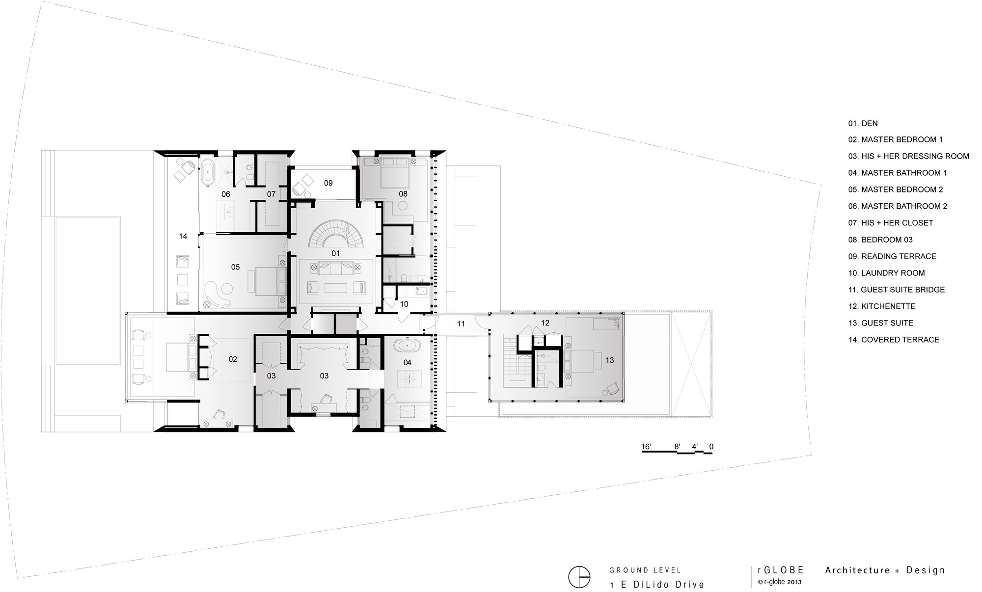
26/26 Images A Stylish Contemporary Home with a Splendid Interior and Carved Staircase in Miami Beach by rGlobe architecture (26)