Blairgowrie 2 by InForm
This timber and glass pavilion is the second house in the development and continues the theme of coastal modernity.
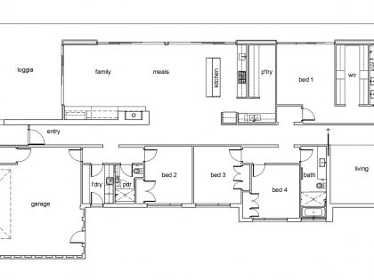
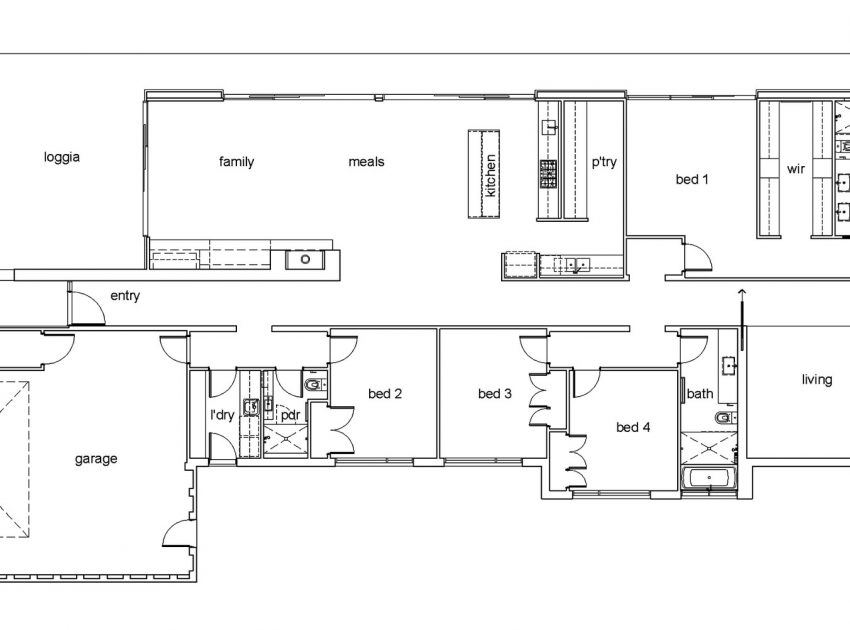
Following the principles of the InForm ‘Retreat’ design, but on a larger scale, the house includes a double garage, four bedrooms and a lounge, as well as an open plan kitchen, meals and living space.
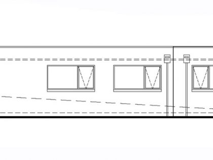
The characteristic long lineal roof plane caps the entire building, protecting the loggia and deck that extends the length of the northern exterior. A full height vertical timber screen protects the loggia from the west, and creates a dynamic front façade.
Large full height black aluminium doors connect the living areas and master bedroom to the deck and sweeping lawn beyond. The black aluminium provides a striking contrast with the smoky grey oiled timber cladding and crisp white fascias. A white concrete brick blade wall separates the entry from the loggia and extends into the living area to form the fireplace.
White oiled oak floors add an appropriate contemporary but rustic sensibility to the interior palette, which also includes stainless steel and marble bench tops, oak joinery and a white mosaic tiled splash back.
The House Design Project Information:
- Project Name: Blairgowrie 2
- Location: Mornington Peninsula, Victoria, Australia
- Type: Modern House
- Designed by: InForm
- Project Year: 2014
- Principle Interior Designer: Kanako Nakanishi
- Architect In Charge: Simon Perkins
Photos by: InForm & Hilary Bradford
View more: A Stylish Contemporary Home with a Splendid Interior and Carved Staircase in Miami Beach
Related: A Brutalist Yet Warm Modern Home with Artistic Touches in Sharon, Israel
Here: A Sleek Modern Home Characterized by Splendid White Pure Interiors in Scottsdale
Read also: A Stunning and Spacious Home with Simple and Modern Lines in Saint-Tropez, France
Next: A Stylish and Stunning Cantilevered Home Overlooking the Coastal City of Halifax, Canada
Check out: A Stunning Luxurious Modern Home with a Breathtaking Views in Indian Wells
Read more: A Contemporary Home Overlooking Lake Washington and the Cascade Mountains in Seattle












