Somjai House by NPDA studio
The house was mainly designed as a home after retirement for the owner and, at the same time, it also serves as a reception for Coco-NutNume resort where family, friends and guests can stop by and have a good time.
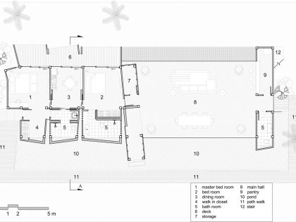
The building consists of a main-bedroom with bathrooms, a guest-bedrooms, a guest-bathrooms and a pantry for family cooking. The main hall of the building serves as a flexible-multi-purpose space. It can be used as a living space, a party venue, coffee shop or even a yoga area. The upper deck was designed to provide panoramic view of the surrounded coconut plantation, the sea, Samui Island and the hills.
The line of the architecture form is relating to the skyline of hills behind the building which allows the wind to flow smoothly with the curvy design. The front of the building was designed with open angle to receive the full view of the sea. The cantilever concept was used to protect the building from the hot sunlight.
The main color used was red to make the building stand out from the green of the coconut plantation and the blue of the sea. Brick and polished concrete were the material due the cooling property to protect the house from the heat and due to the local construction worker expertise. The thin iron staircase also shows the craftsmanship of local workmen as construction workers at the piers who are skillful in metal work.
Photos by: NPDA studio & anotherspace
View more: A Barn Transformed into a Beautiful Countryside Home in Folkestone, England
Related: A Luxurious Modern Home with Bright and Unique Character in Shanghai, China
Here: A Luxurious and Sunny Contemporary House in Hallandale Beach
Read also: A Stunning Wood and Stone House with Luminous and Elegant Interior in Koszeg, Hungary
Next: A Contemporary Home Embraces an Open Courtyard and Pool in Jakarta, Indonesia












