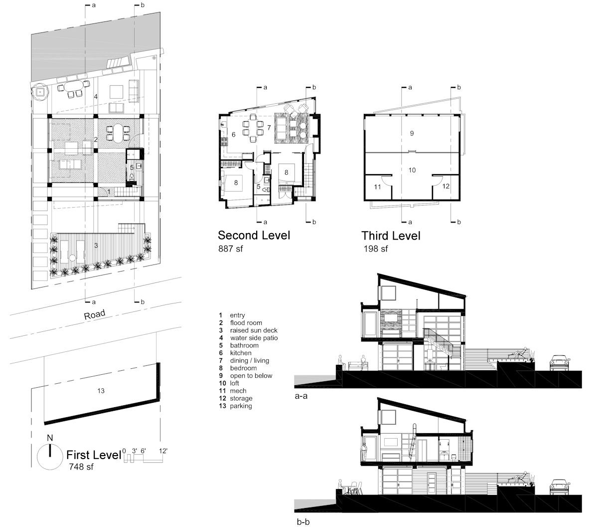
41/41 Images A Stunning Waterfront House Designed to Withstand a Tsunami in Camano Island by Designs Northwest Architects (41)