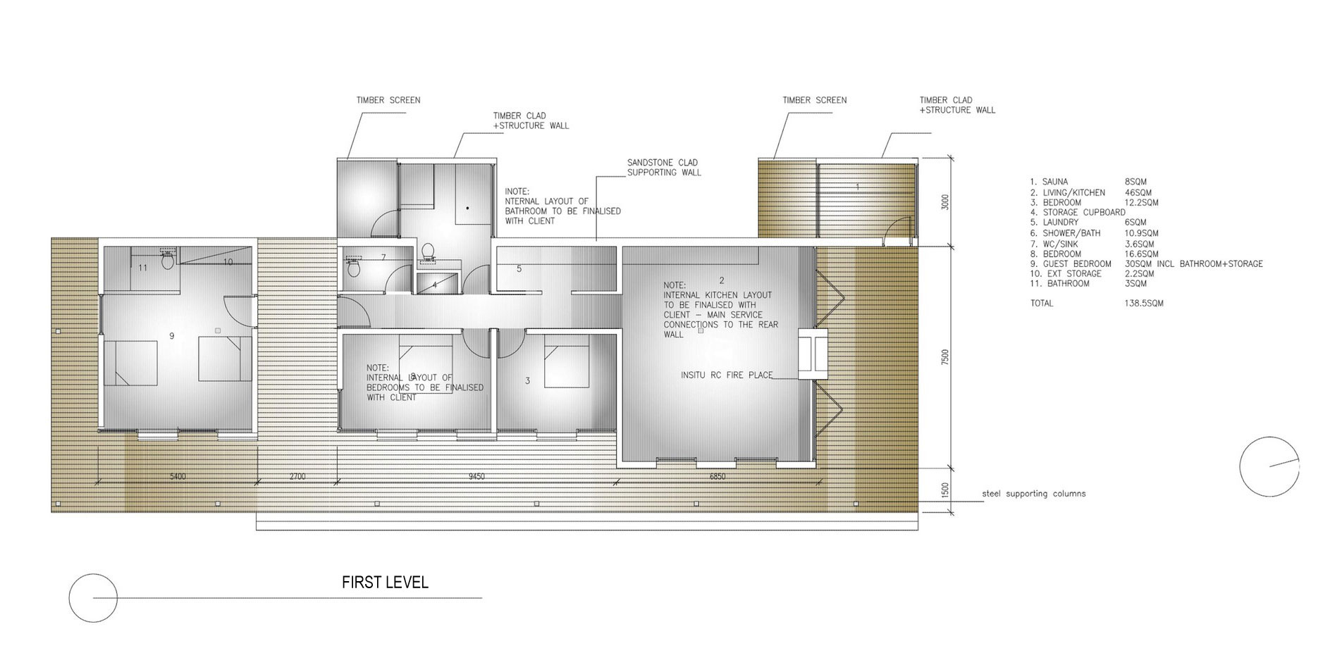
21/30 Images An Elegant Contemporary Mountain Home for Two Avid Climbers in New South Wales by Urban Possible (21)