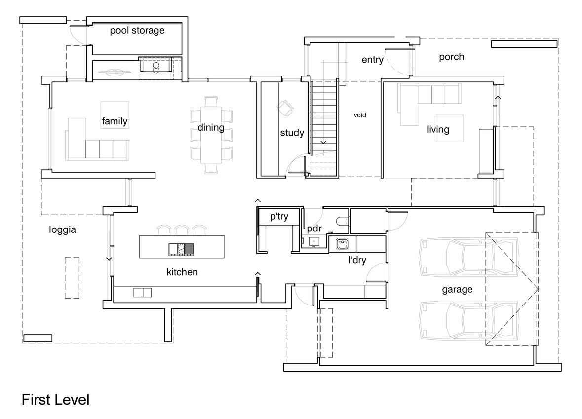
11/14 Images A Luxury Contemporary Home with Sophisticated and Timeless Elegance in Brighton, Australia by InForm Design (11)