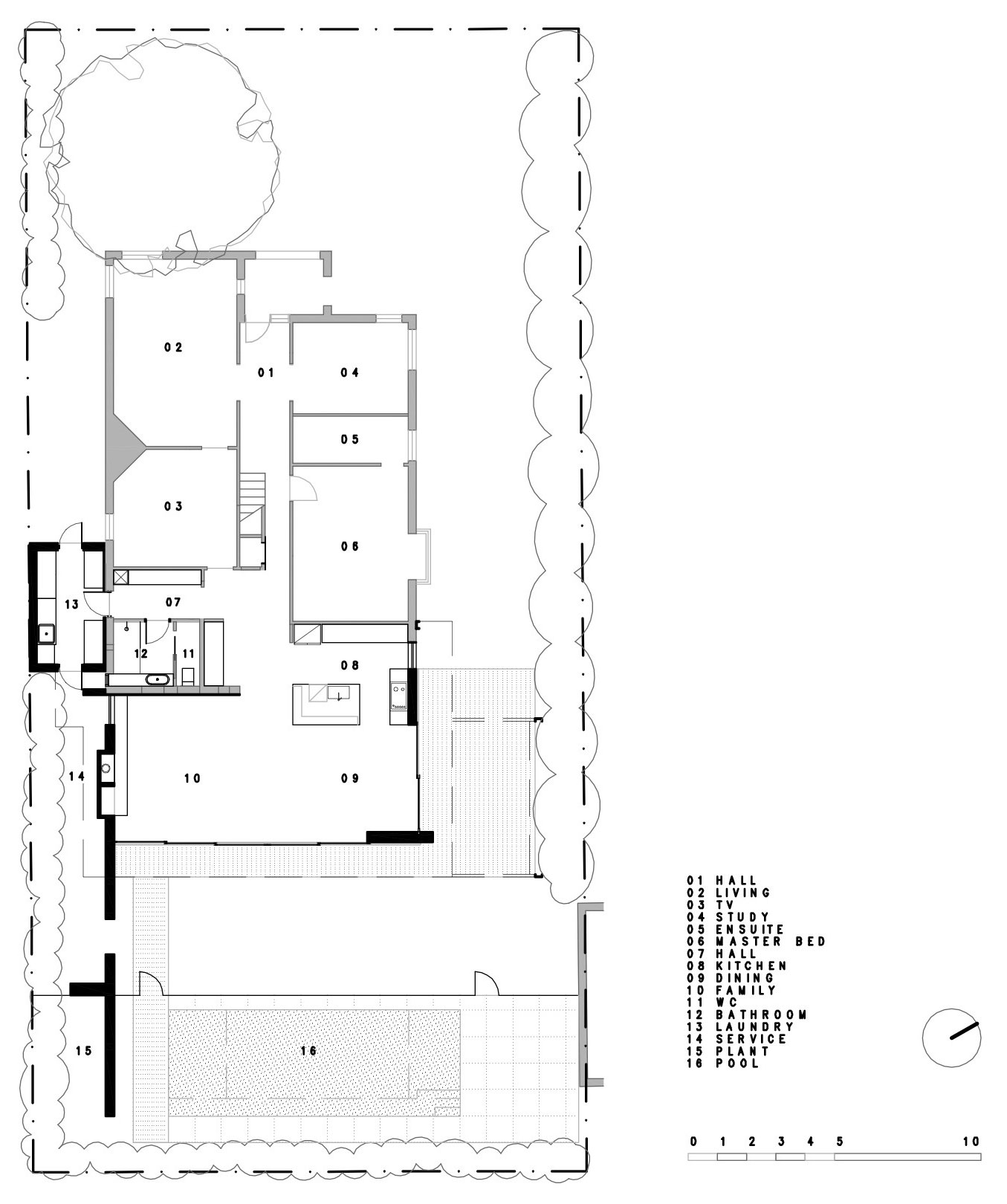
16/18 Images A Home with Sophisticated Interiors and an Abundant of Natural Light in Elwood by Foong + Sormann (16)