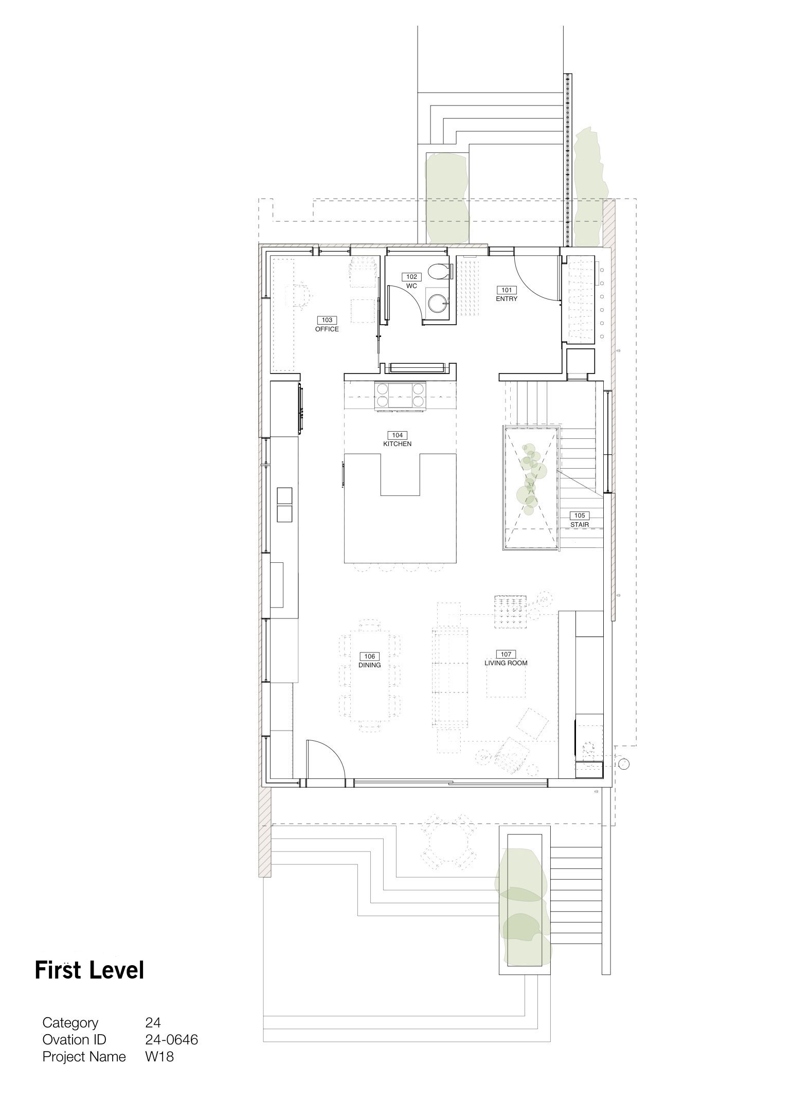
16/18 Images A Stylish Home with White Brick Facade and Full of Light in Vancouver, Canada by Randy Bens Architect (16)