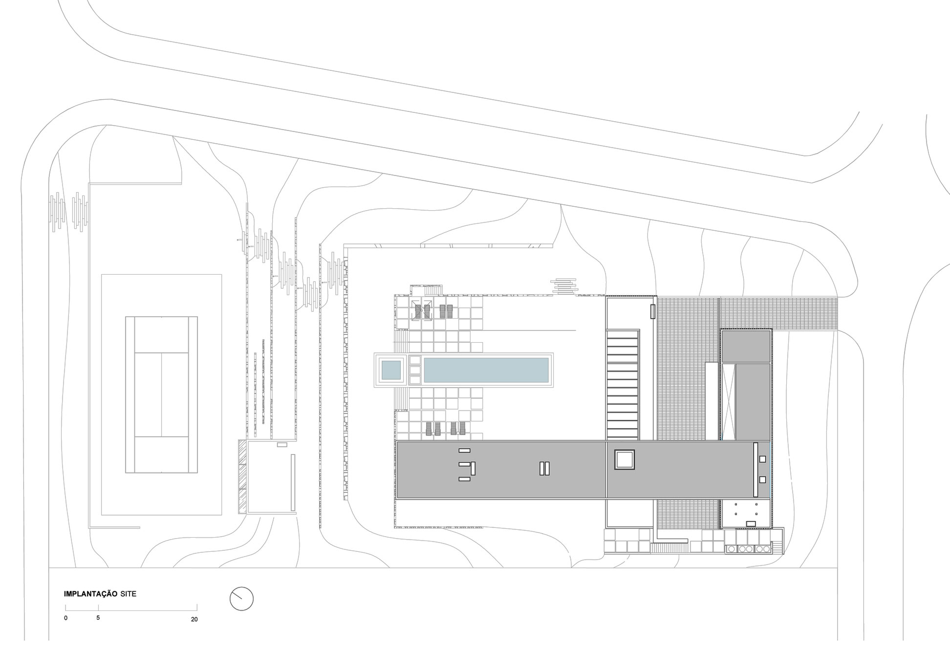
12/12 Images A Modern House Made Up by Particular and Cantilevered Volumes in São Paulo by Bernardes + Jacobsen Arquitetura (12)