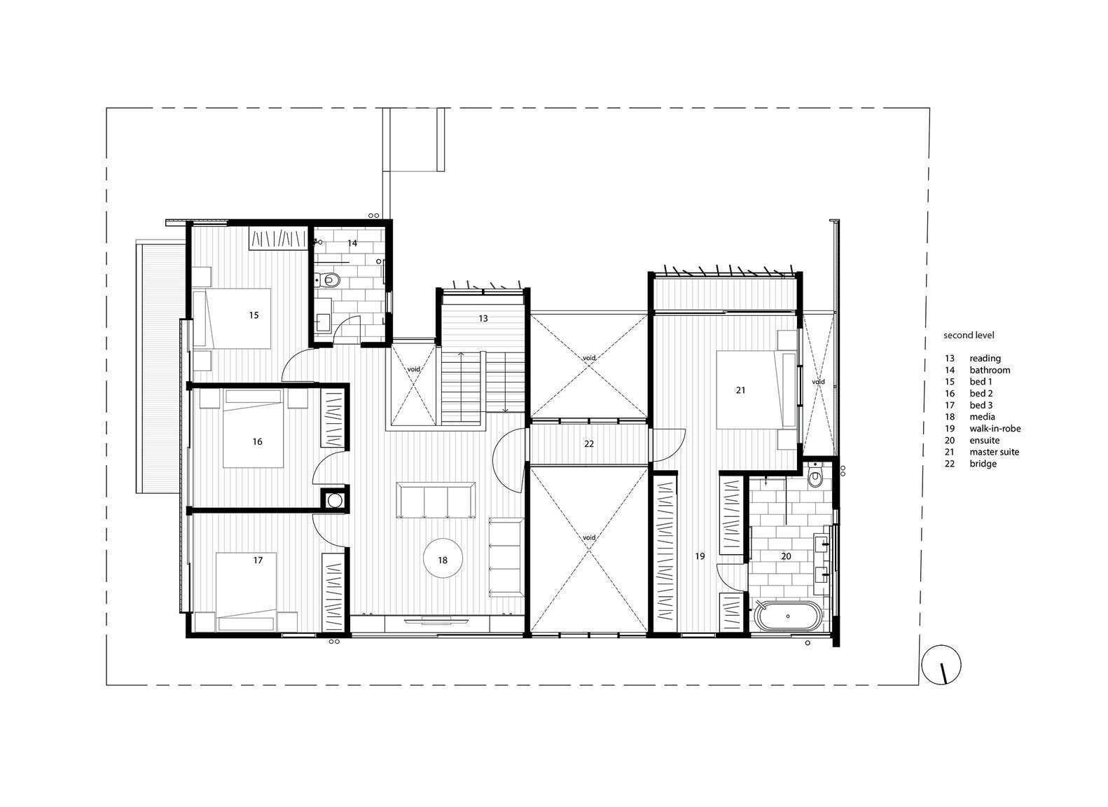
17/18 Images A Spacious and Stylish Summer Home with Beautiful Terrace in Brisbane by Joe Adsett Architects (19)