Kame House by Kochi Architect’s Studio
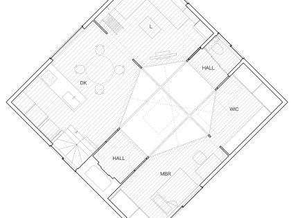
This house is located in new residential area in JAPAN. A House has 12 small rooms which has deferent function divided over two floors. I inserted a hexagonal void at the middle of the house : an atrium with a connection to every room.
The result is a dynamic and complex interior that provides the experience of being present in all rooms without losing the possibility of retreating into just one.
Wall and floor are 60 mm (2.36in) thickness made by wooden structure ( LVL Laminated Veneer Lumber ). Thin wall and floor makes patchwork views throughout the house. I aimed to make “high density scenery” in small architecture.
Photos by: Kochi Architect’s Studio & Takumi Ota
View more: A Stylish Concrete House with Playful and Elegant Interiors in Morelos, Mexico
Related: A Stunning Concrete Home for a Couple and Two Children in Semarang, Indonesia
Here: An Amazing Contemporary House Filled with Natural Light and White Exteriors in Brasilia
Read also: A Bright Modern Home for a Couple and Two Children in Tokyo, Japan












